4 AKIN AVENUECAPITOL HEIGHTS, MD 20743




Mortgage Calculator
Monthly Payment (Est.)
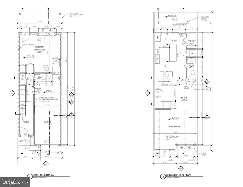
$616Permit-Ready Land for Sale — Just 2 Blocks from Washington, D.C. Exceptional opportunity to build in a prime location just blocks from Washington, D.C. This shovel-ready property includes approved building permits and architectural floor plans for a 4-level, 5-bedroom, 4-bathroom home, allowing construction to begin immediately. All public utilities are already approved and available at the site, simplifying the development process and reducing upfront preparation time. Located just blocks from the Metro station, the future home offers outstanding convenience and accessibility. With four full levels, the layout creates numerous possibilities: live in part of the home while generating rental income from additional levels, operate an Airbnb, create a private office or workspace, or design a multi-generational living arrangement. No HOA and no HOA restrictions. A rare permit-ready development opportunity in an established neighborhood just moments from the nation’s capital. If you need a construction crew, use ours to finish the buildout.
| 15 hours ago | Listing first seen on site | |
| 15 hours ago | Listing updated with changes from the MLS® |
The real estate listing information is provided by Bright MLS is for the consumer's personal, non-commercial use and may not be used for any purpose other than to identify prospective properties consumer may be interested in purchasing. Any information relating to real estate for sale or lease referenced on this web site comes from the Internet Data Exchange (IDX) program of the Bright MLS. This web site references real estate listing(s) held by a brokerage firm other than the broker and/or agent who owns this web site. The accuracy of all information is deemed reliable but not guaranteed and should be personally verified through personal inspection by and/or with the appropriate professionals. Properties in listings may have been sold or may no longer be available. The data contained herein is copyrighted by Bright MLS and is protected by all applicable copyright laws. Any unauthorized collection or dissemination of this information is in violation of copyright laws and is strictly prohibited. Copyright © 2020 Bright MLS. All rights reserved.